Lesy ČR, Oblastní ředitelství – Ostrava, ČR

Objekt je navržen jako moderní dřevostavba. Je založen na jednotlivých patkách, nepodsklepený. Naopak, prostor pod domem je provětrávaný. Všechny části domu i garáž jsou navrženy jako dřevostavba z dřevěných panelů.

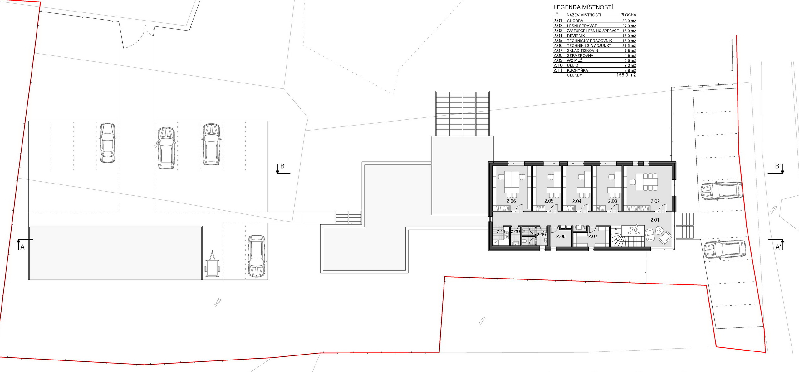
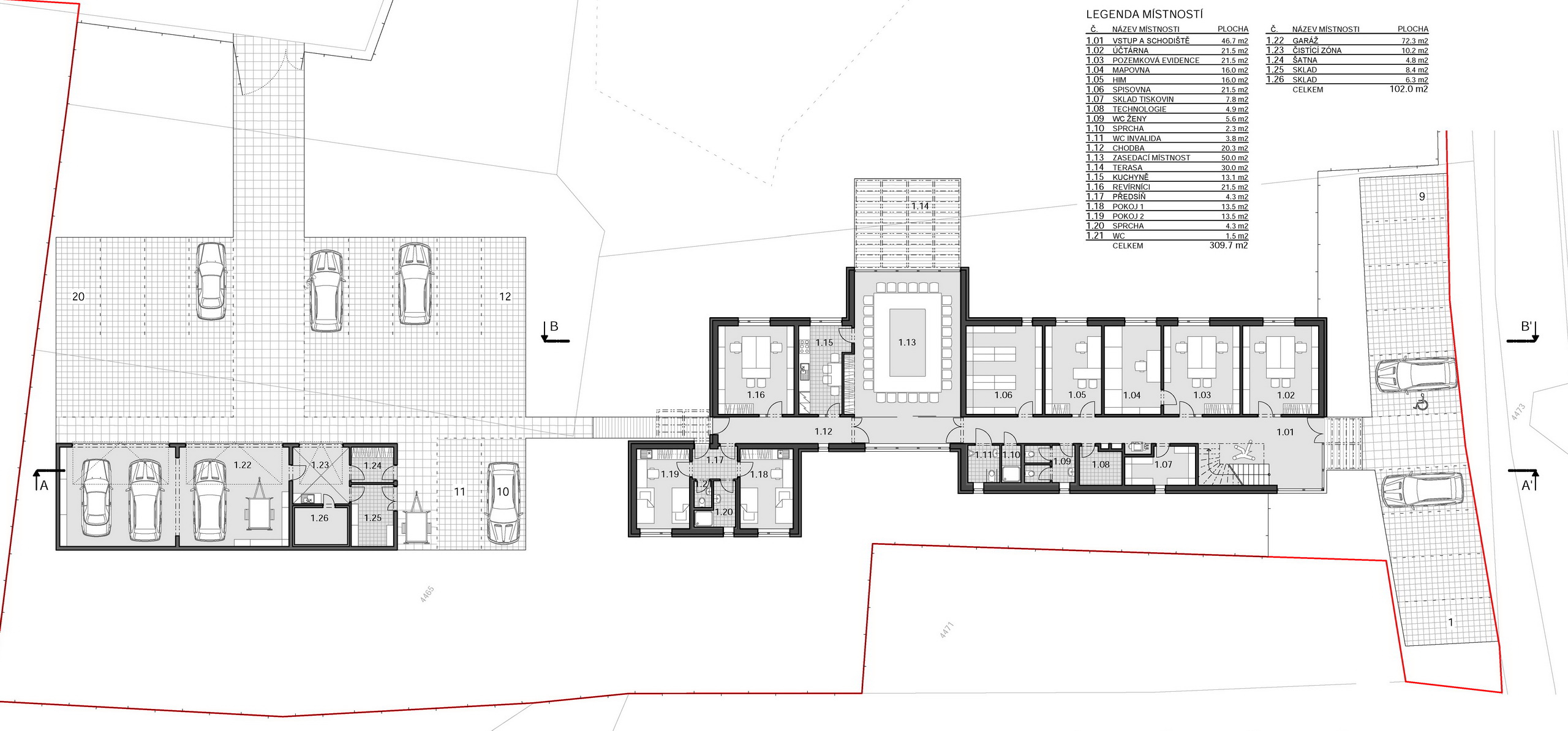
Administrativní budova měla obsahovat kanceláře pro cca 14 zaměstnanců s velkou zasedací místností pro 30 osob. Součástí mělo být oddělené křídlo s inspekčním pokojem s lůžky a zázemín, garáž pro 3 osobní auta, přívěsné vozíky a 20 venkovních parkovacích míst.

Povrchovou úpravu fasády měly tvořit latě ze sibiřského modřínu na výšku. Povrch ošetřen opálením (Shou Karamatsuban). Tato technika má dlouhou tradici v Japonsku a používá se i dnes. Při kontrolovaném opalování dřevěných prken dochází k vytváření zuhelnatělého povrchu, který dřevo konzervuje a vytváří přirozenou ochranu proti houbám a mikrobům. Chemická ochrana dřeva, nátěr barvou a jeho pravidelné obnovování tak kompletně odpadá. Podle tradičních metod se spojí dohromady vždy tři prkna do trojúhelníkové trubky a zapálí se zasunutým papírem. Vzniknout by měla asi 3 až 4 mm silná zuhelnatělá vrstva. Fasády Shou Karamatsu vydrží až 80 let bez ošetření. Jako čistě organický materiál lze prkna na konci životnosti domu po stržení opět začlenit do přirozeného koloběhu. Touto jednoduchou úpravou fasády jsme chtěli vytvořit bezúdržbovou plochu a zároveň připomenout historickou úlohu města (černá Ostrava). Tyto černé latě měly být kombinovány se sněhově bílou barvou rámů oken a ostění.

Kontrastní částí je hmota zasedací místnosti, která bude obložena dřevem světlým, lakovaným.

Autoři studie: BREAKPOINT, spol. s.r.o. (Ing. arch. Tomáš Veselý, Ing. arch. Břetislav Heczko)

WEB: Dřevostavba roku 2016

error: Content is protected !!